Photos






























Contact
9960 Thomas Jefferson Dr
McKinney, TX 75072

Floorplan Pricing and Availability
New! Interactive Property Map
4 Bedrooms
9960 Thomas Jefferson Dr
$2,200
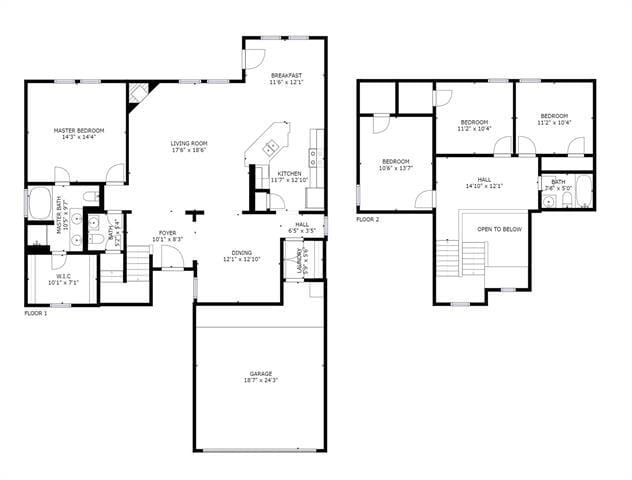
4 Beds, 2.5 Baths, 2019 sq ftAvailable NowAvailability Details
Price Availability Date Unit Sq Ft Deposit $2,200 Available Now 9960 Thomas Jefferson Dr 2019 sq ft $1,850 Model Amenities and Features
Unique Amenities
- garage available
Features
- Air Conditioning
- Cable Ready
- Ceiling Fans
- Fireplace
- Heat Type - Electric
- Heating
- High Speed Internet Access
Kitchen
- Dishwasher
- Disposal
- Microwave
- Range
- Refrigerator
Living Space
- Hardwood Floors
- Tile Floors
Outdoor Space
- Fenced Lot
Services
- Garden Style
Model Rent and Fees
Model Price
- $2,200
Deposit
- $1,850 deposit
Additional Property Details
Super clean and ready for move-in, this 4-bed, 2.5-bath, two-story stunner in award-winning Frisco ISD is the kind of place that makes you say, “Where has this been all my life?†From the charming front porch that practically begs for a rocking chair and morning coffee, to the fresh neutral paint and updated lighting that give it that “Pinterest-ready†vibe, this home is an easy “yes.†The spacious family room with cozy fireplace flows right into the eat-in kitchen—complete with breakfast bar, black appliances, and plenty of space for your culinary genius (or DoorDash deliveries… no judgment here). A separate formal dining room is perfect for holiday feasts or can moonlight as a second living area, office, or hobby space. The primary suite is downstairs for your peace and quiet, featuring a private bath with dual sinks, a soaking tub, and a separate shower—your personal spa minus the cucumber water. Upstairs, three roomy bedrooms and a full bath mean everyone gets their own corner of comfort. No carpet here—wood laminate throughout the living spaces, ceramic tile in wet areas, and zero excuses for not keeping it clean. Step out back to a fenced yard perfect for BBQs, fur babies, or a hammock under the stars. Community perks include a sparkling pool and amenities that make “staycation†a real thing. Practical updates? New AC-heat pump in 2019 for year-round comfort. Prime location close to shopping, dining, parks, and major roads—so you can get anywhere fast (including the community pool). Take the immersive 3D virtual tour and “walk†through from your couch—yes, you can even apply online. Application instructions in MLS media. $50 per adult. Unit Code: BWW-188. Schedule your showing today before someone else with great taste beats you to it!
9960 Thomas Jefferson Dr
$2,200
4 Beds, 3 Baths, 2019 sq ftAvailable NowAvailability Details
Price Availability Date Unit Sq Ft $2,200 Available Now 9960 Thomas Jefferson Dr 2019 sq ft Model Amenities and Features
Unique Amenities
- garage available
Features
- Air Conditioning
- Cable Ready
- Ceiling Fans
- Fireplace
- Heating
- High Speed Internet Access
- Sprinkler System
Kitchen
- Dishwasher
- Disposal
- Kitchen
- Microwave
- Range
- Refrigerator
Lease Terms
- 12
Living Space
- Hardwood Floors
Outdoor Space
- Lawn
- Patio
- Porch
Services
- Garden Style
Model Rent and Fees
Model Price
- $2,200
Additional Property Details
Gabriel CorraSuper clean and ready for move-in, this 4-bed, 2.5-bath, two-story stunner in award-winning Frisco ISD is the kind of place that makes you say, Where has this been all my life? From the charming front porch that practically begs for a rocking chair and morning coffee, to the fresh neutral paint and updated lighting that give it that Pinterest-ready vibe, this home is an easy yes. The spacious family room with cozy fireplace flows right into the eat-in kitchen complete with breakfast bar, black appliances, and plenty of space for your culinary genius (or DoorDash deliveries... no judgment here). A separate formal dining room is perfect for holiday feasts or can moonlight as a second living area, office, or hobby space.The primary suite is downstairs for your peace and quiet, featuring a private bath with dual sinks, a soaking tub, and a separate shower your personal spa minus the cucumber water. Upstairs, three roomy bedrooms and a full bath mean everyone gets their own corner of comfort.No carpet here wood laminate throughout the living spaces, ceramic tile in wet areas, and zero excuses for not keeping it clean. Step out back to a fenced yard perfect for BBQs, fur babies, or a hammock under the stars. Community perks include a sparkling pool and amenities that make staycation a real thing.Practical updates? New AC-heat pump in 2019 for year-round comfort. Prime location close to shopping, dining, parks, and major roads so you can get anywhere fast (including the community pool).Take the immersive 3D virtual tour and walk through from your couch yes, you can even apply online. Application instructions in MLS media. $50 per adult.Unit Code: BWW-188. Schedule your showing today before someone else with great taste beats you to it!
Features and Amenities
On-Site Services
- Garden Style
Outdoor Features
- Fenced Lot
Interior Features
- Heat Type Electric
- Heating
- Ceiling Fans
- Fireplace
- High Speed Internet Access
- Cable Ready
- Air Conditioning
Kitchen Amenities
- Dishwasher
- Microwave
- Range
- Refrigerator
- Disposal
Living Area Features
- Tile Floors
- Hardwood Floors
Unique Amenities
- Garage Available
Pet Policy
- No Pets Allowed

Map
- Shopping
- Colleges
- Grocery
- Medical

Map
What Are Walk Score®, Transit Score®, and Bike Score® Ratings?
- Walk Score® measures the walkability of any address.
- Transit Score® measures access to public transit.
- Bike Score® measures the bikeability of any address.
Nearby Schools
Heritage High School
Sonntag Elementary School
About GreatSchools Data on ApartmentHomeLiving.com.
Points of Interest
Time and distance from 9960 Thomas Jefferson Dr.
Big Box and Retail
Walmart
Walgreens
Aldi
Colleges and Universities
Collin County Community College - Preston Ridge Campus
Collin County Community College - Collin Higher Education Center
Collin County Community College - Central Park Campus
Groceries
India Bazaar
Aldi
Whole Foods
Hospitals
Baylor Scott & White Medical Center - Mckinney
Shopping Centers
9960 Thomas Jefferson Dr has 5 shopping centers within 1.4 miles.
Nearby Neighborhoods
Nearby Apartments
Rental Price Ranges in the Area
Bedroom | Average Rent | Cheapest Rent | Highest Rent |
---|---|---|---|
McKinney Studio Apartments | $1,298 | $548 | $1,925 |
McKinney 1 Bedroom Apartments | $1,502 | $465 | $3,641 |
McKinney 2 Bedroom Apartments | $2,044 | $658 | $6,259 |
McKinney 3 Bedroom Apartments | $2,709 | $1,444 | $10,000+ |
McKinney 4 Bedroom Apartments | $3,447 | $2,250 | $10,000+ |
Browse Top Apartments in McKinney
- See McKinney Apartments for Rent
- See McKinney Homes for Rent
- See McKinney Condos for Rent
- See McKinney Townhomes for Rent
- Cheap McKinney Apartments
By Price
- Cheap McKinney Apartments
- McKinney Apartments Under $600
- McKinney Apartments Under $1000
- McKinney Apartments Under $1200
- McKinney Apartments Under $1500
- McKinney Apartments Under $2000
- McKinney Luxury Apartments
By Community Type
- McKinney Apartments with Rent Specials
- McKinney Top Rated Apartments
- McKinney Corporate Apartments
- McKinney Furnished Apartments
- McKinney Gated Apartments
- McKinney Loft Apartments
- McKinney Low Income Apartments
- New McKinney Apartments
- McKinney Senior Apartments
- McKinney Short-term Apartments
- McKinney Apartments with Utilities Included