Photos












- 3Dorm., 1BACasa
- $2,148Precio Mensual Total
- 1,110Pies cuadrados
- Disponible AhoraDisponibilidad
Información sobre el arrendamiento
Precio por Unidad
- $2,148
Acerca 3840 44th Ave S
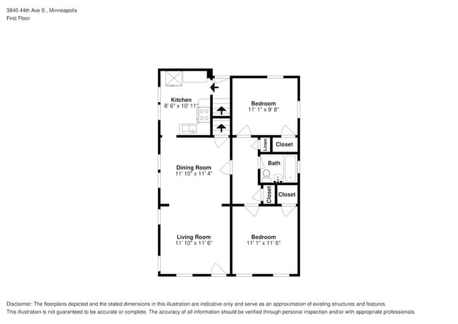
Bienvenido a 3840 44th Ave S, Minneapolis, MN 55406. Imagínese en esta casa. Realice un recorrido virtual y vea el plano de la planta en la galería de fotos. El alquiler base anunciado anteriormente incluye un crédito de mantenimiento de $100. El alquiler mensual total de esta casa, incluidos los cargos no opcionales, es de $1844.95. Este monto incluye el alquiler base (con crédito mensual de $100 ya aplicado), un cargo por Smart Home de $40 y un cargo por facturación de servicios públicos de $9.95. El alquiler mensual total puede aumentar en función de los servicios opcionales seleccionados por el residente. ¿Estás listo para vivir en un lugar que puedas hacer tuyo? No puedes'equivocarte con esta casa. Entre la entrada de concepto abierto, las vigas de luz natural que fluyen a través de las ventanas colgantes de primera calidad y los lujosos pisos de vinilo, la sala de estar es simplemente impresionante. Le encantará la hermosa cocina completa con gabinetes premium, elegantes encimeras y electrodomésticos de acero inoxidable. El espacio de cocción es amplio y está preparado para alojar a un cocinero que conoce su camino alrededor de una cocina. Un patio trasero ofrece espacio incorporado para mascotas y un sinfín de oportunidades para relajarse en paz. ¡Haz tu solicitud en línea hoy! En Invitation Homes, ofrecemos casas que admiten mascotas y que tienen patio para alquilar con tecnología Smart Home en increíbles vecindarios de todo el país. Vive en una gran casa sin el dolor de cabeza y el compromiso a largo plazo de ser propietario. Descubra el hogar de sus sueños con Invitation Homes. Nuestro paquete Lease Easy, que incluye Smart Home, Air Filter Delivery y Utilities Management, es una parte clave de su estilo de vida de arrendamiento sin preocupaciones. El arrendamiento requiere estos servicios a un costo mensual adicional. También pueden aplicarse cargos mensuales por mascotas y piscinas. Características y servicios del hogar: Aire acondicionado, sala adicional, garaje, plazos de alquiler prolongados, plancha de vinilo de lujo, patio, que acepta mascotas, hogar inteligente, electrodomésticos de acero inoxidable, azulejos, techos abovedados, conexiones para W/D y administrados profesionalmente por Invitation Homes. Invitation Homes es un arrendador de vivienda igualitaria según la FHA. Pueden aplicarse las leyes locales, estatales y federales aplicables. Se aplican términos y condiciones adicionales. Este anuncio no es una oferta de alquiler. Debe enviar información adicional, incluida una solicitud de alquiler y un cargo por solicitud. Se cree que toda la información de arrendamiento es precisa, pero es posible que se hayan producido cambios desde que se tomaron las fotografías y se estiman los metros cuadrados. Consulte el sitio web de InvitationHomes para obtener más información. Tenga cuidado con las estafas: Los empleados de Invitation Homes nunca le pedirán su nombre de usuario y contraseña. Invitation Homes no publicita en Craigslist, Social Serve, etc. Somos propietarios de nuestras casas; no hay propietarios privados. Todos los fondos para alquilar con Invitation Homes se pagan directamente a través de nuestro sitio web, nunca a través de giros electrónicos o aplicaciones de pago como Zelle, Pay Pal o Cash App. Para obtener más información, envíe una consulta para esta casa. Las solicitudes están sujetas a nuestros requisitos de calificación. Se aplican términos y condiciones adicionales. CONSENTIMIENTO PARA MENSAJES DE TEXTO: Al ingresar su número de teléfono móvil, usted acepta expresamente recibir mensajes de texto de Invitation Homes. Pueden aplicarse tarifas de mensajes y datos.
3840 44th Ave S se encuentra en el código postal 55406 de Minneapolis, MN.
Información de contacto de la propiedad
Fees and Policies
Las tarifas que figuran a continuación se basan en datos facilitados por la comunidad y pueden excluir tasas y servicios adicionales.
Tasas Requeridas
Utilidades y servicios básicos
- Utility Billing Service FeeiCharged per unit$9.95/mes
- Smart Home with video doorbelliCharged per unit$40/mes
Pet Policy and Fees
Dogs
- Fees Not Specified
Cats
- Fees Not Specified
Parking Info and Fees
- Garage Parking
Exención de responsabilidad sobre las tasas de propiedad: Based on community-supplied data and independent market research. Subject to change without notice. May exclude fees for mandatory or optional services and usage-based utilities.
Características y Facilidades
Servicios
- Con Jardín
Características al Aire Libre
- Parcela Vallada
Características únicas
- Garaje

Mapa
- Compras
- Universidades
- Supermercado
- Médicos
- Parques
- Transporte

Mapa
¿Qué son las clasificaciones Walk Score®, Transit Score® y Bike Score®?
- Walk Score® mide la viabilidad peatonal de cualquier dirección.
- Transit Score® mide el acceso a transporte público.
- Bike Score® mide la infraestructura de rutas para bicicletas de cualquier dirección.
Preguntas Frecuentes sobre 3840 44th Ave S
¿Qué tipo de alquileres hay disponibles en 3840 44th Ave S?
Actualmente hay un Casa de 3 Dormitorios 1 Baño en alquiler con 1,110 en 3840 44th Ave S. Está Disponible Ahora.
¿Cuánto cuesta el alquiler ent 3840 44th Ave S?
3840 44th Ave S se lista actualmente en $2,148.
¿En qué zona de la ciudad se encuentra 3840 44th Ave S?
3840 44th Ave S está 55406 en el código postal en Minneapolis, MN.
Escuelas Cercanas
Howe Elementary
Hiawatha Elementary
Sanford Middle
Sitios de Interés
Tiempo y distancia desde 3840 44th Ave S.
Arte, Museos y Monumentos
Grandes Superficies de Ventas
Walgreen's
Walgreens
Aldi
Universidad
Tiendas
Cub Foods
Aldi
Hospitales
University Of Minnesota Medical Center, Fairview
Abbott Northwestern Hospital
Children's Hospitals & Clinics Of Minnesota
Bases Militares
Fort Snelling Military Reservation
Parques y opciones de recreación
3840 44th Ave S tiene 5 parques en un radio de 5.9 millas, incluyendo Powderhorn Park, Loring Park, Como Zoo, Lake of the Isles, y The Grand Rounds.
Centros Comerciales
3840 44th Ave S tiene 5 centros comerciales en un radio de 1.4 millas.
Estaciones de Tránsito
Barrios cercanos
Apartamentos Cercanos
Rango de Precios de los Alquileres en la Zona
| Dormitorios | Precio Promedio | Más barato | Más caro |
|---|---|---|---|
| Apartamentos Estudio en Minneapolis | $1,316 | $640 | $5,541 |
| Apartamentos 1 Dormitorios en Minneapolis | $1,543 | $500 | $6,819 |
| Apartamentos 2 Dormitorios en Minneapolis | $2,144 | $469 | $10,000+ |
| Apartamentos 3 Dormitorios en Minneapolis | $2,373 | $495 | $10,000+ |
| Apartamentos 4 Dormitorios en Minneapolis | $2,106 | $479 | $7,935 |
| Apartamentos 5 Dormitorios en Minneapolis | $3,383 | $2,250 | $3,895 |
Ver Apartamentos más destacados en Minneapolis
Por el Precio
- Apartamentos Barato en Minneapolis
- Apartamentos en Minneapolis menos de $500
- Apartamentos en Minneapolis menos de $600
- Apartamentos en Minneapolis menos de $700
- Apartamentos en Minneapolis menos de $800
- Apartamentos en Minneapolis menos de $900
- Apartamentos en Minneapolis menos de $1000
- Apartamentos en Minneapolis menos de $1200
- Apartamentos en Minneapolis menos de $1500
- Apartamentos en Minneapolis menos de $2000
- Apartamentos de Lujo en Minneapolis
Por tipo de comunidad
- Apartamentos en alquiler por el propietario en Minneapolis
- Apartamentos en Minneapolis con Oferta Especial
- Apartamentos en Minneapolis Más Valorados
- Apartamentos en Minneapolis Viviendas Corporativas
- Apartamentos en Minneapolis Amueblado
- Apartamentos en Minneapolis Reja de Entrada Automática
- Apartamentos en Minneapolis Loft
- Apartamentos en Minneapolis De Bajos Ingresos
- Apartamentos en Minneapolis Militar
- Nuevos Apartamentos en Minneapolis
- Apartamentos en Minneapolis Personas Mayores
- Apartamentos en Minneapolis Contratos de Corto Plazo
- Apartamentos en Minneapolis Estudiante
- Apartamentos en Minneapolis con Utilidades Incluidas
Por las Características
- Apartamentos en Minneapolis con Pisos de Madera
- Apartamentos en Minneapolis con Lavandería
- Apartamentos en Minneapolis con Estacionamiento Disponible
- Apartamentos en Minneapolis Se Permiten Mascotas
- Apartamentos en Minneapolis con Piscina(s)
- Apartamentos en Minneapolis con Lavadora y Secadora
- Apartamentos en Minneapolis con Estaciones de Carga EV
