Photos












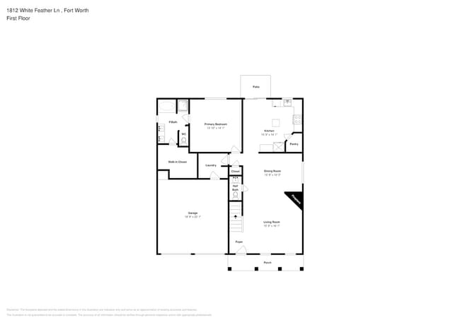
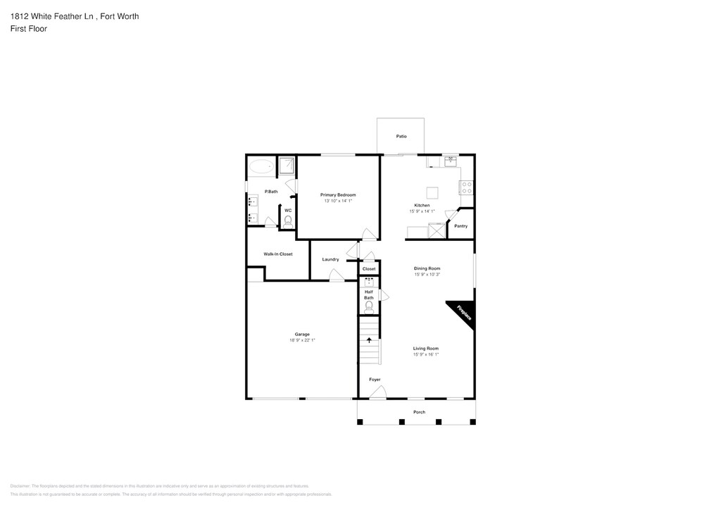
- 4BR, 2.5BAHome
- $2,395Price
- 2,360Square Feet
- Available NowAvailability
Features and Amenities
Features
- Fireplace
Rent and Fees
Unit Price
- $2,395
About 1812 White Feather Ln
Lease this home and get more from Invitation Homes professional property management. This home comes fully loaded with quality amenities, must-have services, high-end tech and ProCare® professional maintenance. Your estimated total monthly payment is $2539.90. That covers your base rent, $2395.00 + our required services designed to make your life easier: Air Filter Delivery Fee ($9.95), Internet & Media ($85), Smart Home with video doorbell ($40), and Utility Billing Service Fee ($9.95). Base rent varies based on selected lease term. You need a house you can make your own. Here it is. Invite your family and friends for quality time in a home that reflects your spirit. The living space offers a luxury vinyl plank flooring you can make your own. You’ll love the beautiful kitchen complete with premium cabinets, granite countertops and stainless steel appliances. The cooking space is roomy and set up to accommodate a cook who knows their way around a kitchen. Personalize this fenced backyard with a patio that can serve any purpose, from hosting a home garden to giving your pets a playground. All this place is missing is you. This is your chance to transform a house into a home that fits your unique personality. Apply online now! At Invitation Homes, we offer pet-friendly, yard-having homes for lease with Smart Home technology in awesome neighborhoods across the country. Live in a great house without the headache and long-term commitment of owning. Discover your dream home with Invitation Homes. Our Lease Easy bundle – which includes Smart Home, Air Filter Delivery, and Utilities Management – is a key part of your worry-free leasing lifestyle. These services are required by your lease at an additional monthly cost. Monthly fees for pets and pools may also apply. Home Features and Amenities: Air Conditioning, Bonus Room, Covered Porch, Fenced Yard, Fireplace, Garage, Granite Countertops, Kitchen Island, Long Lease Terms, Luxury Vinyl Plank, Patio, Pet Friendly, Primary Bedroom on Main, Recessed Lighting, Smart Home, Stainless Steel Appliances, Walk in Closet, W/D Hookups, and professionally managed by Invitation Homes. This Invitation Home is being enjoyed by another resident, but it will be available soon. You can still apply – contact us for more details or apply now. Invitation Homes is an equal housing lessor under the FHA. Applicable local, state and federal laws may apply. Additional terms and conditions apply. This listing is not an offer to rent. You must submit additional information including an application to rent and an application fee. All leasing information is believed to be accurate, but changes may have occurred since photographs were taken and square footage is estimated. Furthermore, prices and dates may change without notice. See InvitationHomes website for more information. Beware of scams: Employees of Invitation Homes will never ask you for your username and password. Invitation Homes does not advertise on Craigslist, Social Serve, etc. We own our homes; there are no private owners. All funds to lease with Invitation Homes are paid directly through our website, never through wire transfer or payment app like Zelle, Pay Pal, or Cash App. For more info, please submit an inquiry for this home. Applications are subject to our qualification requirements. Additional terms and conditions apply. CONSENT TO CALLS & TEXT MESSAGING: By entering your contact information, you expressly consent to receive emails, calls, and text messages from Invitation Homes including by autodialer, prerecorded or artificial voice and including marketing communications. Msg & Data rates may apply. You also agree to our Terms of Use and our Privacy Policy.
1812 White Feather Ln is located in the Blue Mound Neighborhood and 76131 Zip code of Fort Worth, TX.
Property Contact Info
Fees and Policies
The fees below are based on community-supplied data and may exclude additional fees and utilities.
Required Fees
Utilities & Essentials
- Utility Billing Service Fee$9.95/mo
- Air Filter Delivery Fee$9.95/mo
- Smart Home with video doorbell$40/mo
- Internet & Media$85/mo
Pet Policy and Fees
Dogs
- Fees Not Specified
Cats
- Fees Not Specified
Parking Info and Fees
- Garage Parking
Property Fee Disclaimer: Based on community-supplied data and independent market research. Subject to change without notice. May exclude fees for mandatory or optional services and usage-based utilities.
Features and Amenities
Unique Amenities
- Air Filter Delivery Fee
- Internet & Media
- Smart Home with video doorbell
- Utility Billing Service Fee
On-Site Services
- Garden Style
Outdoor Features
- Fenced Lot
- Porch
- Patio
Interior Features
- Fireplace
Living Area Features
- Walk In Closets
Unique Amenities
- Garage Available

Map
- Shopping
- Colleges
- Grocery
- Medical
- Transportation

Map
What Are Walk Score®, Transit Score®, and Bike Score® Ratings?
- Walk Score® measures the walkability of any address.
- Transit Score® measures access to public transit.
- Bike Score® measures the bikeability of any address.
Frequently Asked Questions about 1812 White Feather Ln
What type of rentals are available at 1812 White Feather Ln?
There is currently a 4 Bed 2 Bath Home for rent with 2,360 listed at 1812 White Feather Ln. It is Available Now.
How much is the rent at 1812 White Feather Ln?
1812 White Feather Ln is currently listed at $2,395.
What area of town is 1812 White Feather Ln located in?
Located in the Blue Mound Neighborhood, 1812 White Feather Ln is in the 76131 Zip Code of Fort Worth, TX.
Lifestyle Ratings
Learn more about Lifestyle SearchNearby Schools
Highland Middle
Saginaw High School
Chisholm Ridge
About GreatSchools Data on ApartmentHomeLiving.com.
Points of Interest
Time and distance from 1812 White Feather Ln.
Arts Museums and Landmarks
Big Box and Retail
Marshall's
Costco
Autozone
Colleges and Universities
Tarrant County College - North West Campus
Tarrant County College - Trinity River East Campus
Groceries
Winco Foods
Kroger
Lidl
Hospitals
Medical City Alliance
Wise Health System
Texas Health Harris Methodist Hospital Alliance
Hotspots
Military Bases
NAS Fort Worth Joint Reserve Base
Eagle Mountain Nat Guard Base
Restaurants and Dining
Shopping Centers
1812 White Feather Ln has 5 shopping centers within 1.4 miles.
Transit Stations
Fort Worth Intermodal Transportation Center (ITC)-Trinity Railway Express
Nearby Neighborhoods
Nearby Apartments
Rental Price Ranges in the Area
| Bedroom | Average Rent | Cheapest Rent | Highest Rent |
|---|---|---|---|
| Fort Worth Studio Apartments | $1,260 | $699 | $1,919 |
| Fort Worth 1 Bedroom Apartments | $1,351 | $554 | $5,575 |
| Fort Worth 2 Bedroom Apartments | $1,720 | $140 | $10,000+ |
| Fort Worth 3 Bedroom Apartments | $2,256 | $757 | $10,000+ |
| Fort Worth 4 Bedroom Apartments | $2,999 | $1,419 | $10,000+ |
| Fort Worth 5 Bedroom Apartments | $8,910 | $6,000 | $10,000+ |
Browse Top Apartments in Fort Worth
By Price
- Cheap Fort Worth Apartments
- Fort Worth Apartments Under $600
- Fort Worth Apartments Under $700
- Fort Worth Apartments Under $800
- Fort Worth Apartments Under $900
- Fort Worth Apartments Under $1000
- Fort Worth Apartments Under $1200
- Fort Worth Apartments Under $1500
- Fort Worth Apartments Under $2000
- Fort Worth Luxury Apartments
By Community Type
- Fort Worth Apartments for Rent by Owner
- Fort Worth Apartments with Rent Specials
- Fort Worth Top Rated Apartments
- Fort Worth Corporate Apartments
- Fort Worth Furnished Apartments
- Fort Worth Gated Apartments
- Fort Worth Loft Apartments
- Fort Worth Low Income Apartments
- Fort Worth Military Apartments
- New Fort Worth Apartments
- Fort Worth Senior Apartments
- Fort Worth Short-term Apartments
- Fort Worth Student Apartments
- Fort Worth Apartments with Utilities Included
