Photos



























- 3BR, 2.5BA Townhome
- $4,100 Pricing
- 2,804 Square Feet
- 05-01-2026 Availability
Unit Rent and Fees
Unit Price
- $4,100
Deposit
- $4,100 deposit
About 1516 Pecos St
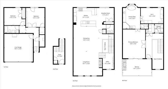
DOCT0R OR EXECUTIVE'S DREAM TOWNHOME, NO HOA! Experience elevated city living in this stunning, modern designed townhome, superior in quality, ideally located minutes from Baylor, Downtown, Arts District, Uptown, & Deep Ellum. Surrounded by fine dining, vibrant nightlife, & cultural hotspots, this home offers a perfect balance of convenience & privacy. The property is nestled on a tree-lined street w its own private backyard oasis-a rare retreat in the heart of the city. Inside the thoughtfully designed layout blends sophistication w comfort, creating an ideal space for both entertaining & everyday living. Rich basketball court hardwood flrs, high ceilings & abundant windows fill the home w warmth & natural light. The open concept living & dining area is both striking & inviting featuring a fp, custom lighting, expansive energy efficient windows, & generous space for hosting memorable gatherings. The gourmet kitchen is designed to impress, showcasing custom cabinetry, natural stone countertops, an oversized island, double ovens, a commercial grade gas cooktop, breakfast area, pantry, & recently installed premium refrigerator-a true chef's dream. Leading to the primary bedroom is an office nook w a sleek cabinet providing a functional workspace. The third floor primary suite is a private sanctuary opening to a balcony w seating & a cozy fp-the perfect place to unwind while enjoying breathtaking views of the Downtown Dallas skyline. The spa-inspired ensuite bath features a garden tub, large glass-enclosed shower, separate vanities, & an expansive custom walk-in closet w addl flex space ideal for a home gym or secondary office. On the ground floor, two additional bedrooms offer versatility-one currently serving as a family room w direct access to the beautifully enclosed backyard. Additional highlights include an attached garage w epoxied floors & abundant storage in the home. Modern luxury, exceptional quality, & unbeatable location-all in one extraordinary residence
1516 Pecos St is located in the Cityplace Neighborhood and 75204 Zip code of Dallas, TX.
Property Contact Info
- Listed by:
- Agency:
- Vendor Logo:
- Website:
- View Property Website
- Call Us:
- (214) 770-0695
- Disclaimer:
Fees and Policies
The fees listed below are community-provided and may exclude utilities or add-ons. All payments are made directly to the property and are non-refundable unless otherwise specified.
Required Fees
One-Time Basics
- Due at Application
- Application Fee Per ApplicantiCharged Per Applicant.$100
- Due at Move-In
- Security Deposit - RefundableiCharged Per Unit.$4100
Parking Info and Fees
- Garage Parking
Property Fee Disclaimer: Based on community-supplied data and independent market research. Subject to change without notice. May exclude fees for mandatory or optional services and usage-based utilities.
Features and Amenities
On-Site Services
- Car Charging Station
Interior Features
- Balcony
- Heat Type Gas
- Security System
- Fireplace
- High Speed Internet Access
- Double Vanities
- Heating
- Cable Ready
- Air Conditioning
Kitchen Amenities
- Dishwasher
- Eat In Kitchen
- Island Kitchen
- Range
- Refrigerator
- Oven
- Pantry
- Microwave
- Disposal
- Granite Countertops
Living Area Features
- Walk In Closets
- Tile Floors
- Carpet
- Hardwood Floors
Outdoor Features
- Yard
Unique Amenities
- Garage Available

Map
- Shopping
- Colleges
- Schools
- Grocery
- Medical
- Parks
- Transportation

Map
Frequently Asked Questions about 1516 Pecos St
What type of rental is available at 1516 Pecos St?
There is currently a 3 Bed 2 Bath Townhome for rent with 2,804 sq ft listed at 1516 Pecos St. It is Available May 1, 2026.
How much is the rent at 1516 Pecos St?
The rental at 1516 Pecos St is currently listed at $4,100.
What area of town is 1516 Pecos St located in?
Located in the Cityplace Neighborhood, 1516 Pecos St is in the 75204 Zip Code of Dallas, TX.
Points of Interest
Time and distance from 1516 Pecos St.
Arts Museums and Landmarks
Big Box and Retail
Target
Aldi
Autozone
Colleges and Universities
University of Texas Southwestern Medical Center
Groceries
Aldi
Sprouts Farmers Market
Kroger
Hospitals
Baylor Scott & White Medical Center Uptown
Baylor University Medical Center
Baylor Scott & White Heart & Vascular Hospital - Dallas
Parks and Recreation
1516 Pecos St has 1 park within 7.8 miles, including Texas Stadium.
Restaurants and Dining
Shopping Centers
1516 Pecos St has 5 shopping centers within 0.7 miles.
Transit Stations
Cityplace (McKinney Avenue)-McKinney Avenue Streetcar
McKinney Plaza-McKinney Avenue Streetcar
McKinney and Bowen-McKinney Avenue Streetcar
Nearby Neighborhoods
Nearby Apartments
Rental Price Ranges in the Area
| Bedroom | Average Rent | Cheapest Rent | Highest Rent |
|---|---|---|---|
| Dallas Studio Apartments | $1,365 | $556 | $5,124 |
| Dallas 1 Bedroom Apartments | $1,528 | $155 | $10,000+ |
| Dallas 2 Bedroom Apartments | $2,017 | $644 | $10,000+ |
| Dallas 3 Bedroom Apartments | $2,703 | $765 | $10,000+ |
| Dallas 4 Bedroom Apartments | $4,864 | $1,245 | $10,000+ |
| Dallas 5 Bedroom Apartments | $10,561 | $5,814 | $10,000+ |
Browse Top Apartments in Dallas
By Price
- Cheap Dallas Apartments
- Dallas Apartments Under $500
- Dallas Apartments Under $600
- Dallas Apartments Under $700
- Dallas Apartments Under $800
- Dallas Apartments Under $900
- Dallas Apartments Under $1000
- Dallas Apartments Under $1200
- Dallas Apartments Under $1500
- Dallas Apartments Under $2000
- Dallas Luxury Apartments
By Community Type
- Dallas Apartments for Rent by Owner
- Dallas Apartments with Rent Specials
- Dallas Top Rated Apartments
- Dallas Corporate Apartments
- Dallas Furnished Apartments
- Dallas Gated Apartments
- Dallas Loft Apartments
- Dallas Low Income Apartments
- Dallas Military Apartments
- New Dallas Apartments
- Dallas Senior Apartments
- Dallas Short-term Apartments
- Dallas Student Apartments
- Dallas Apartments with Utilities Included
