Photos






























Contact
1605 Glenwick Dr

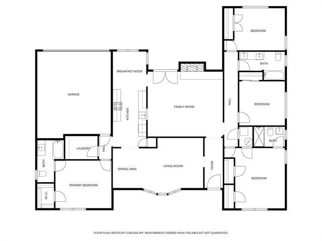
- 4BR, 3BAHome
- $2,900Pricing
- 2,126Square Feet
- Available NowAvailability
Unit Rent and Fees
Unit Price
- $2,900
Deposit
- $2,900 deposit
About 1605 Glenwick Dr
Fully remodeled and move-in ready, this spacious 4-bedroom, 3 full bath home offers a rare and flexible layout in the heart of Plano. Featuring two primary suites, this floor plan is ideal for multi-generational living, roommates, or anyone needing extra privacy and space. Inside you’ll find two separate living areas, updated laminate flooring, neutral paint tones, and a wood-burning fireplace that anchors the main gathering space. The kitchen has been refreshed with shaker-style cabinetry, granite countertops, tile backsplash, and ample storage, flowing seamlessly into both dining areas for easy everyday living and entertaining. All bathrooms have been updated, including a hall bath with double granite vanity and full tile tub surround. The secondary bedrooms are generously sized with ceiling fans and great natural light. A dedicated laundry room with upper cabinets adds convenience, and washer and dryer will be installed prior to move-in. Major system updates provide peace of mind, including updated PVC sewer lines, a recently replaced roof, and a newer water heater. Outside, enjoy a large covered patio overlooking an expansive fenced backyard with mature shade trees, perfect for relaxing, entertaining, or play. The rear-entry two-car garage and extended driveway provide additional parking and added privacy through alley access. Located in highly rated Plano ISD and just minutes from US-75, shopping, dining, and the historic Texas Pool, this home combines space, updates, and location in one exceptional lease opportunity. Furnishings pictured are staged and not included with the home.
1605 Glenwick Dr is located in the 75075 Zip code of Plano, TX.
Property Contact Info
Features and Amenities
On-Site Services
- Garden Style
Outdoor Features
- Fenced Lot
- Yard
Interior Features
- Heat Type Gas
- Heating
- Ceiling Fans
- Fireplace
- Air Conditioning
Kitchen Amenities
- Dishwasher
- Range
- Disposal
Living Area Features
- Tile Floors
- Vinyl Flooring
Unique Amenities
- Garage Available

Map
- Shopping
- Colleges
- Grocery
- Medical
- Transportation

Map
Frequently Asked Questions about 1605 Glenwick Dr
What type of rental is available at 1605 Glenwick Dr?
There is currently a 4 Bed 3 Bath Home for rent with 2,126 sq ft listed at 1605 Glenwick Dr. It is Available Now.
How much is the rent at 1605 Glenwick Dr?
The rental at 1605 Glenwick Dr is currently listed at $2,900.
What area of town is 1605 Glenwick Dr located in?
1605 Glenwick Dr is in the 75075 Zip Code of Plano, TX.
Nearby Schools
Plano Senior High School
Sigler Elementary School
About GreatSchools Data on ApartmentHomeLiving.com.
Points of Interest
Time and distance from 1605 Glenwick Dr.
Big Box and Retail
Jcpenney
Autozone
Target
Colleges and Universities
Collin County Community College - Spring Creek Campus
Collin County Community College - Courtyard Center Campus
Groceries
Kroger
Central Market
99 Ranch Market
Hospitals
Medical City Plano
Methodist Richardson Medical Center
Baylor Scott & White The Heart Hospital - Plano
Restaurants and Dining
Shopping Centers
1605 Glenwick Dr has 5 shopping centers within 0.6 miles.
Transit Stations
Nearby Neighborhoods
Nearby Apartments
Rental Price Ranges in the Area
| Bedroom | Average Rent | Cheapest Rent | Highest Rent |
|---|---|---|---|
| Plano Studio Apartments | $1,293 | $518 | $2,358 |
| Plano 1 Bedroom Apartments | $1,461 | $548 | $8,567 |
| Plano 2 Bedroom Apartments | $1,946 | $644 | $10,000+ |
| Plano 3 Bedroom Apartments | $2,818 | $734 | $10,000+ |
| Plano 4 Bedroom Apartments | $4,576 | $2,499 | $10,000+ |
Browse Top Apartments in Plano
By Price
By Community Type
- Plano Apartments for Rent by Owner
- Plano Apartments with Rent Specials
- Plano Top Rated Apartments
- Plano Corporate Apartments
- Plano Furnished Apartments
- Plano Gated Apartments
- Plano Loft Apartments
- Plano Low Income Apartments
- New Plano Apartments
- Plano Senior Apartments
- Plano Short-term Apartments
- Plano Student Apartments
- Plano Apartments with Utilities Included